
MIL-PRF-131K
8/ Use distilled water. Delamination shall be measured as ply separation at any one given point
extending more than ½ inch from the edge, with an edge length separation greater than one
inch.
9/ Three specimens shall be tested, each one containing a complete set of markings.
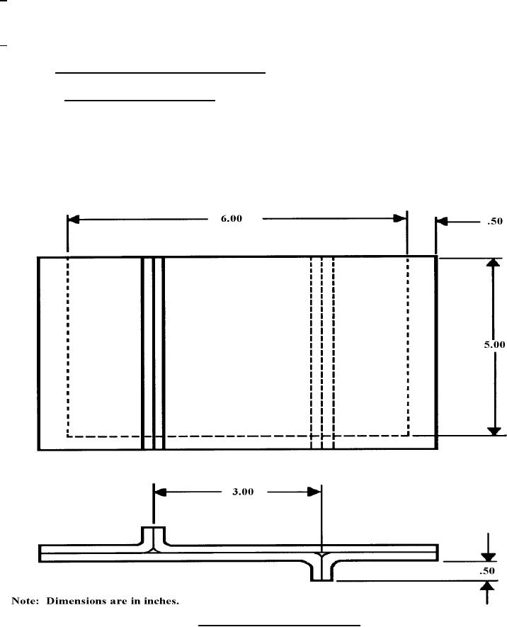
4.6.2 Seam fabrication (for class 1 and class 3).
4.6.2.1 Preparation of test specimens. Four pouches sealed in accordance with the
manufacturer's recommended sealing conditions shall be fabricated from the barrier material.
Each pouch shall be prepared by cutting four specimens; two 2 ½ by 5 ½ inches and two
5 ½ inches by 5 ½ inches. The pouch shall be fabricated by sealing as shown on figure 1. The
butt seals projecting at ½ inch seams perpendicular to the faces shall be made prior to sealing the
bottom. The butt seams shall be folded flat at the point of juncture with the bottom seams before
the bottom seals are made.
FIGURE 1. Pouch for seam fabrication test.
11
For Parts Inquires call Parts Hangar, Inc (727) 493-0744
© Copyright 2015 Integrated Publishing, Inc.
A Service Disabled Veteran Owned Small Business